户型解析 |
在施工地 |
咨询热线:4008005803 |
点击报价
首页
海天名城133平米现代风格
133 现代
冠德华庭133平米现代风格
桔山名邸110平米北欧风格
110 北欧
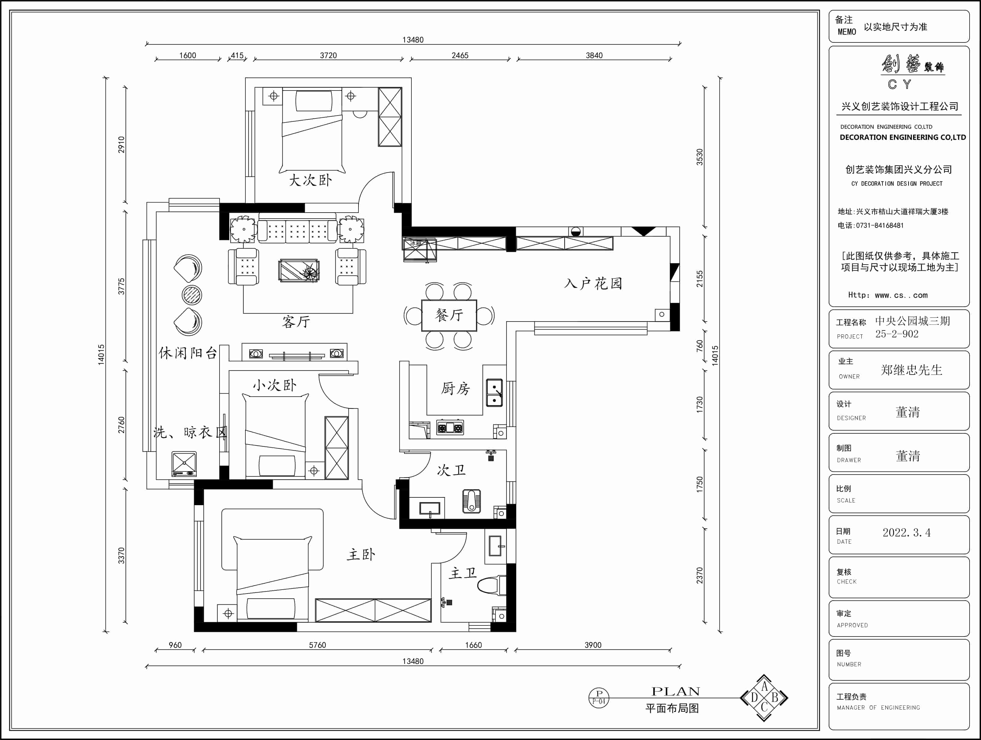
中央公园城117平米现代风格
117 现代
瓮安胡山悦府220平米现代风格
220 现代
河畔阳光105平米现代风格
105 现代
赣新国际110平米现代风格
110 现代
状元府邸116平米现代风格
116 现代
瓮安湖山97平米现代风格
97 现代
装修计算器
已有 81695 位业主获取了装修预算
所在城市*
房屋户型
房屋面积*
手机号码*
*您的信息将被严格保密,请放心填写
您家的装修预算 ????? 元
材料费(元)
??????
人工费(元)
设计费(元)
质检费(元)